
Dispozice
2+KK
Zastavěná plocha
53.37 m²
Podlahová plocha
43.01 m²
Cena bez DPH
1 631 201,- Kč
Detaily domu
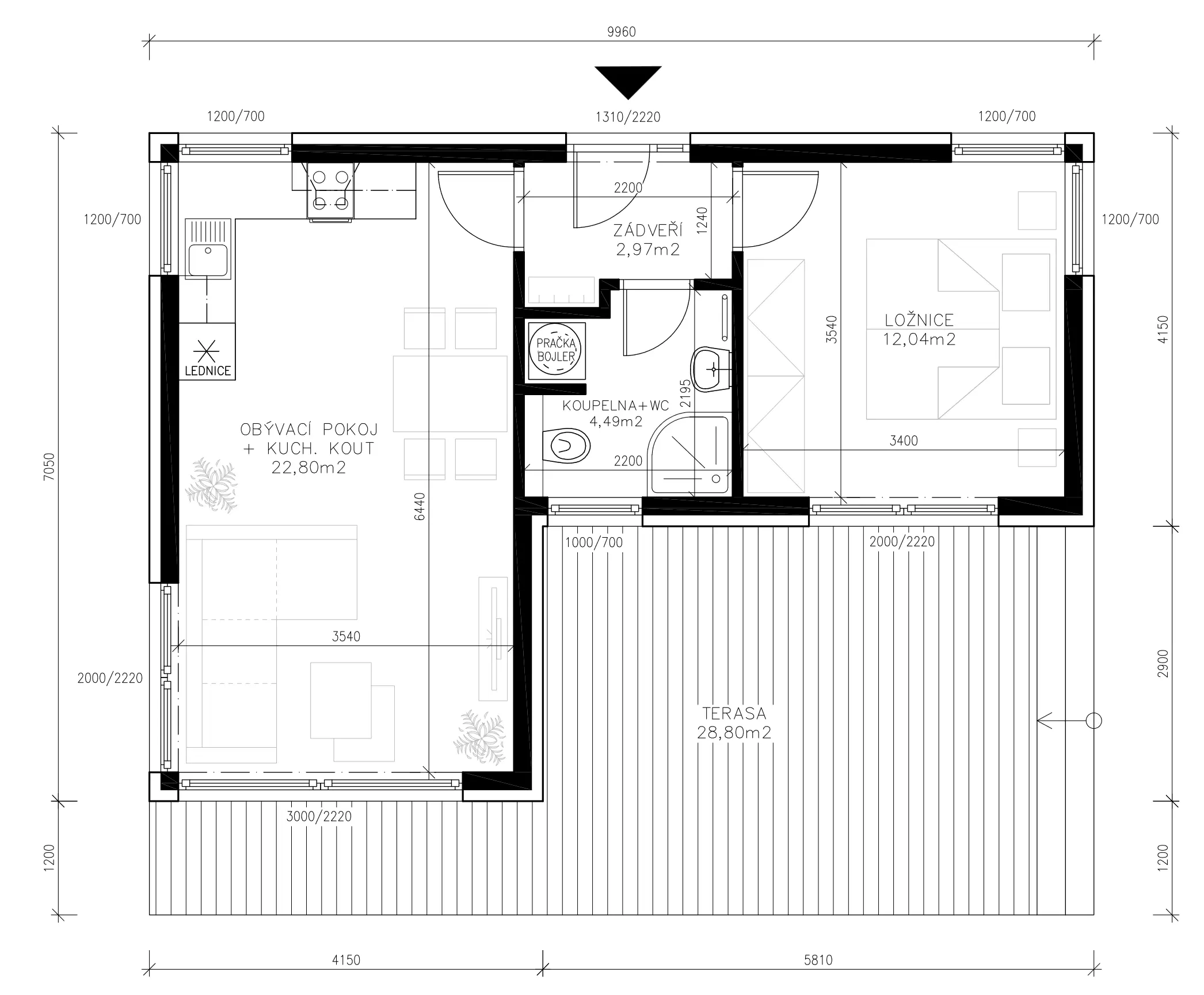
T ento modulový dům je oblíbený především kvůli své příznivé ceně a chytrému řešení prostoru. I když se jedná o druhý nejmenší dům, rozhodně se v něm nebudete cítit stísněně. Jistě vás mile překvapí velké množství světla, které díky tvaru domu a rozlehlé terase proniká do interiéru. Každý jistě ocení možnost přístupu na terasu z obývacího pokoje i ložnice. Stačí jen otevřít a vychutnat si chvíle pohody.
Půdorys domu

Co je v ceně domu?
- Dům
- Projektová dokumentace modulového domu, osazení do terénu, PBŘS, PENB
- Železný rám(nosná konstrukce)
- Plastová okna značky PKS (okna-profil 6 komor se třemi těsněními a trojsklem) nebo Vekra barva dle vlastního výběru ze vzorníku
- Vchodové dveře a vnitřní obložkové dveře s kováním
- Sprchový kout(litý mramor, zástěna čiré sklo) 80x80cm + sprchový set, umyvadlo se skříňkou a baterií, závěsný set WC modul Geberit + záchodová mísa + tlačítko
- Obklady a dlažba do koupelny
- Vinylová role dle vlastního výběru ze vzorníku (volitelné: vinyl, laminátová nebo dřevěná podlaha, keramika atd.) s obvodovými lištami
- Elektrorozvody, rozvody vody a odpadu
- Zásuvky, vypínače, LED světla na strop
- Vytápění elektrickými nástěnnými konvektory(volitelné: podlahové topení, topné folie, fotovoltaika, tepelné čerpadlo a další) v koupelně elektrický žebřík a elektrický ohřivač vody 80L
- Výmalba 2x bílou barvou+penetrace
- Vnitřní i venkovní parapety
- Střecha, svody, okapy
- Fasáda 1,5mm
- Barva střechy a fasády dle vlastního výběru ze vzorníku, bez příplatku
Další fotografie





Bydlet můžete již za 3 měsíce!
