
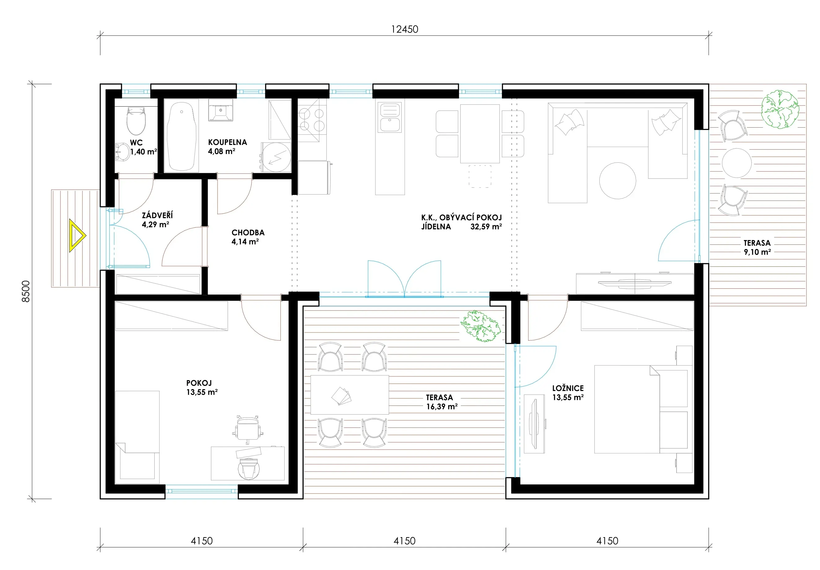
Dispozice
3+KK
Zastavěná plocha
89.43 m²
Podlahová plocha
73.60 m²
Cena bez DPH
2 275 815,- Kč
Detaily domu
P okud sháníte ekonomicky výhodné a pohodlné bydlení, které zároveň splní vaše požadavky komfortu, může být tento dům ten pravý pro vás. Výborné řešení rozlehlé terasy oceníte především v letních měsících, kdy si na ni můžete vyjít přímo z ložnice nebo pokoje. Dopřejte si vlastní bydlení se vším, co si přejete.
Půdorys domu

Co je v ceně domu?
- Dům
- Projektová dokumentace modulového domu, osazení do terénu, PBŘS, PENB
- Železný rám(nosná konstrukce)
- Plastová okna značky PKS (okna-profil 6 komor se třemi těsněními a trojsklem) nebo Vekra barva dle vlastního výběru ze vzorníku
- Vchodové dveře a vnitřní obložkové dveře s kováním
- Sprchový kout(litý mramor, zástěna čiré sklo) 80x80 cm / 90x90 cm + sprchový set, umyvadlo se skříňkou a baterií, závěsný set WC modul Geberit + záchodová mísa + tlačítko
- Obklady a dlažba do koupelny
- Vinylová role dle vlastního výběru ze vzorníku (volitelné: vinyl, laminátová nebo dřevěná podlaha, keramika atd.) s obvodovými lištami
- Elektrorozvody, rozvody vody a odpadu
- Zásuvky, vypínače, LED světla na strop
- Vytápění elektrickými nástěnnými konvektory(volitelné: podlahové topení, topné folie, fotovoltaika, tepelné čerpadlo a další) v koupelně elektrický žebřík a elektrický ohřivač vody 80L
- Výmalba 2x bílou barvou+penetrace
- Vnitřní i venkovní parapety
- Střecha Satjam Trend, svody, okapy
- Fasáda 1,5mm
- Barva střechy a fasády dle vlastního výběru ze vzorníku, bez příplatku
Další fotografie





Bydlet můžete již za 3 měsíce!
